CASA MONTESERRÍN

2009

LA URBANIZACIÓN DONDE SE UBICA LA CASA SE CONFORMA CON VIVIENDAS PAREADAS, LA CASA SE ADOSA ENTONCES AL LADO CORRESPONDIENTE, ESTANDO EL LOTE CONTIGUO VACIÓ TODAVÍA, ESPERAMOS ENTONCES DICTAR LAS PAUTAS PARA LA CONFORMACIÓN DEL VOLUMEN DE LA CASA VECINA QUE SE ADOSARA A ESTA.

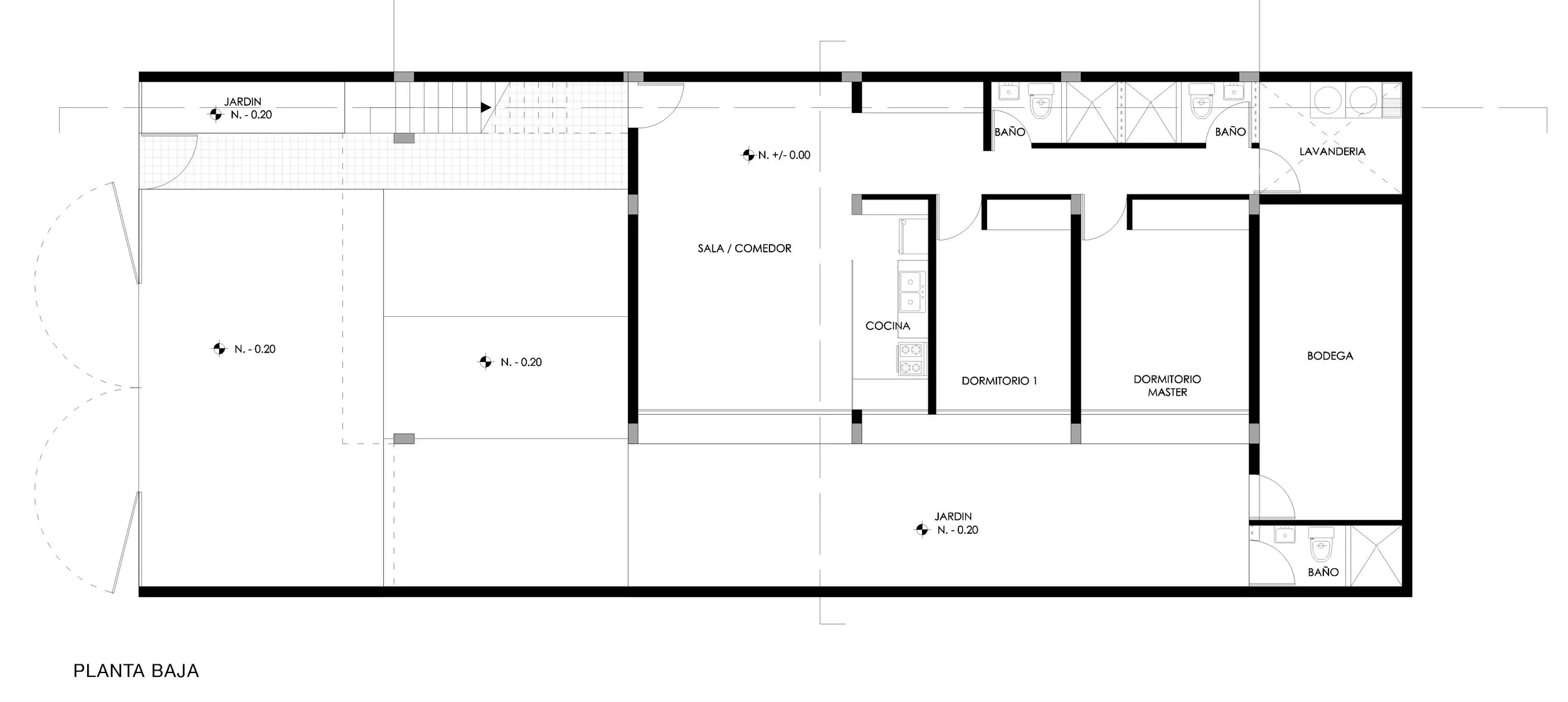
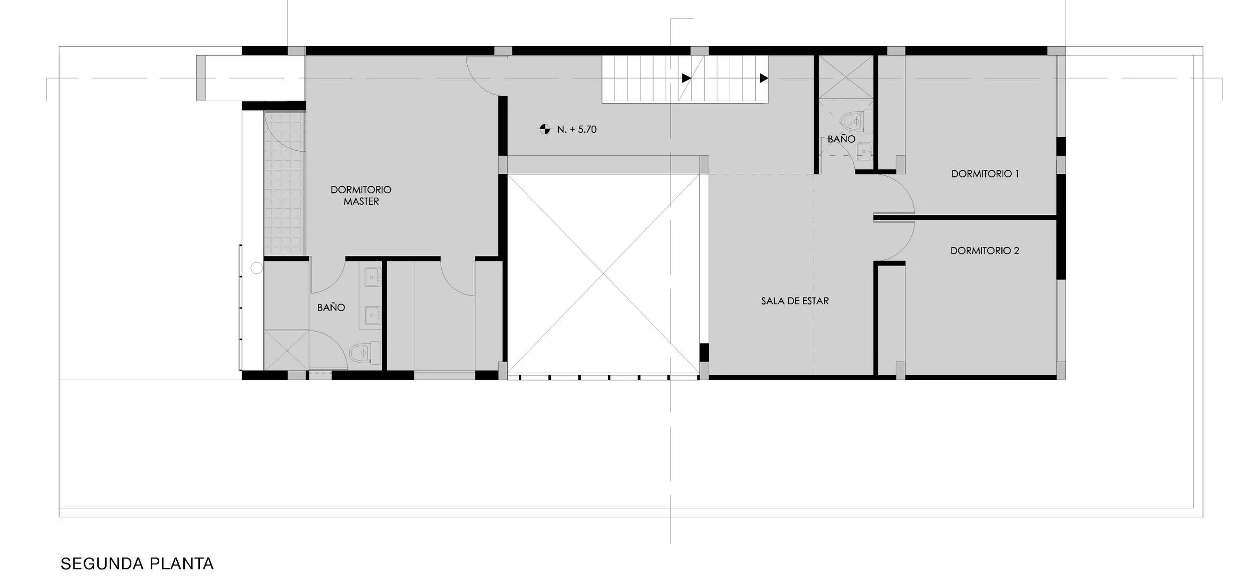
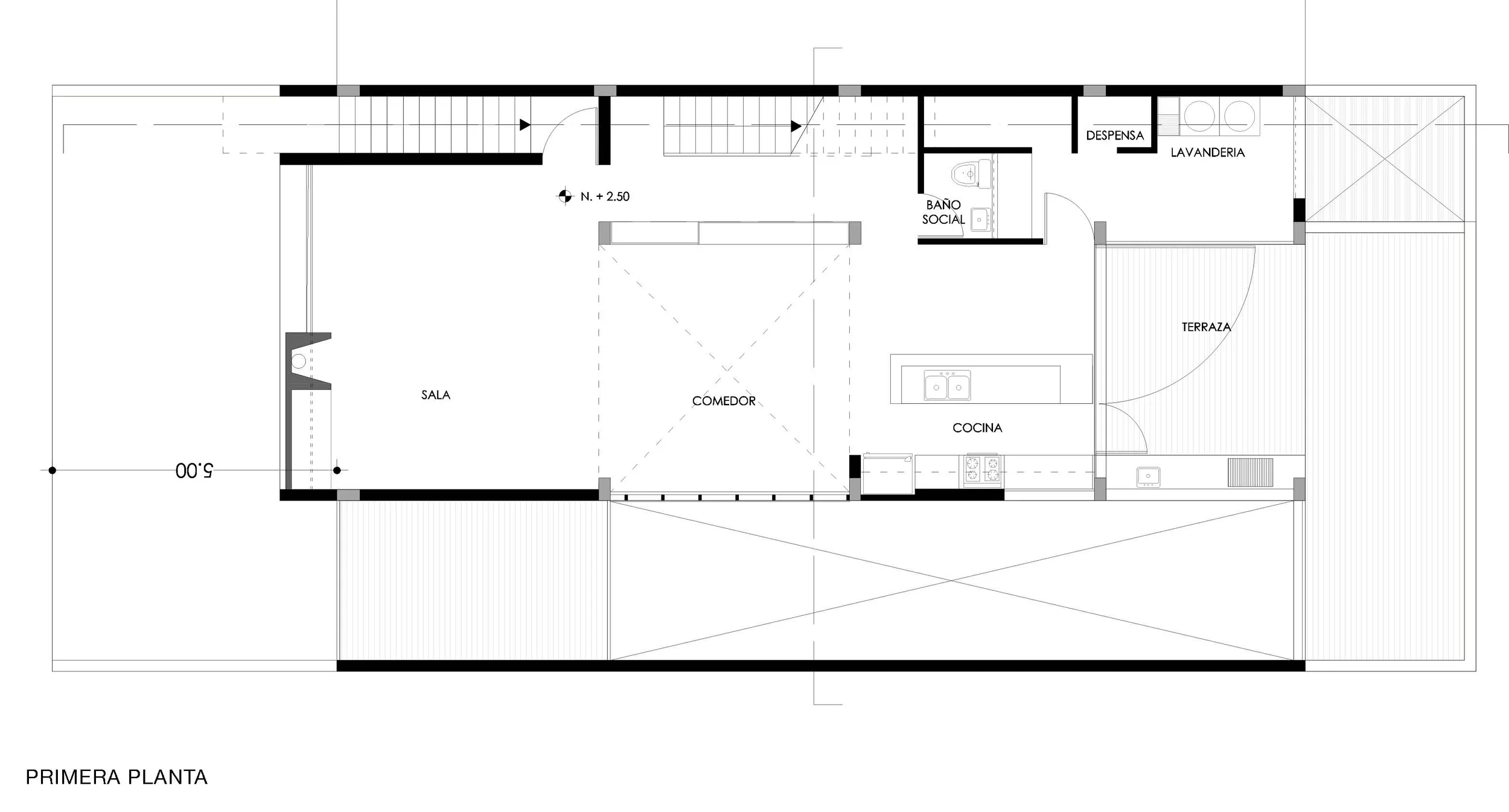
EN PLANTA BAJA SE DISEÑA UN DEPARTAMENTO PARA RENTAR, BODEGAS Y ESTACIONAMIENTOS, LA CASA PROPIAMENTE DICHA ESTA EN EL SEGUNDO Y TERCER NIVEL, LA PLANTA BAJA DE LA CASA SE CONCEPTUALIZA COMO UN CAÑÓN VACIÓ QUE TRANSCURRE DE LADO A LADO, CREANDO LA SENSACIÓN DE EXPANSIÓN ESPACIAL Y FLUIDEZ, UN VACIÓ CENTRAL PERMITE INTEGRAR LA ULTIMA PLANTA CON LOS DORMITORIOS, Y BAÑAR DE LUZ CENITAL AL ESPACIO CENTRAL. ESTA CUBIERTA DE POLICARBONATO ALVEOLAR, CONTINUA COMO PARED HASTA LA ZONA SOCIAL, SE ESPERA CONFORMAR UN ESPACIO MUY LUMINOSO, PERO EL MATERIAL OPACO PERMITE PRIVACIDAD HACIA EL CERCANO VECINO, EN LA NOCHE ESTA PANTALLA DE DOS PISOS SE CONVERTIRÁ EN UNA LINTERNA QUE REFLEJE DISCRETAMENTE LAS SILUETAS DE LA VIDA AL INTERIOR. SE REVESTIRÁ EL VOLUMEN CON GALVALUMEN COLOR NATURAL.